Термин "Чистая продажа" означает, что в квартире никто не прописан или
есть куда выписаться и вывезти вещи. Это лучший вариант для покупателя.
Вероятность срыва сделки минимальна.
Данная квартира подходит под условия семейной ипотеки, со ставкой 6%.
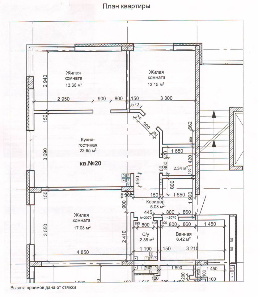
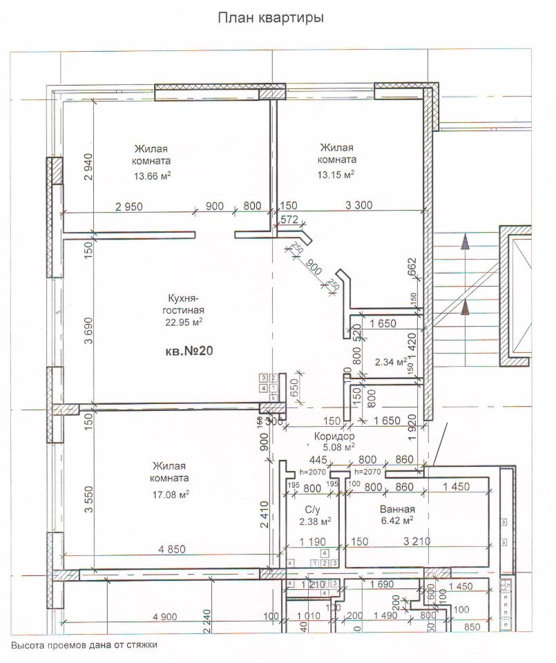
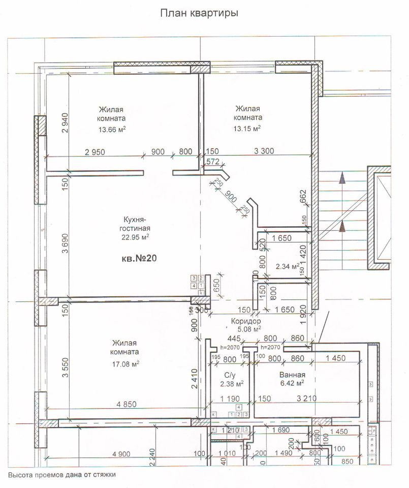
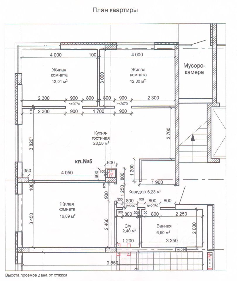
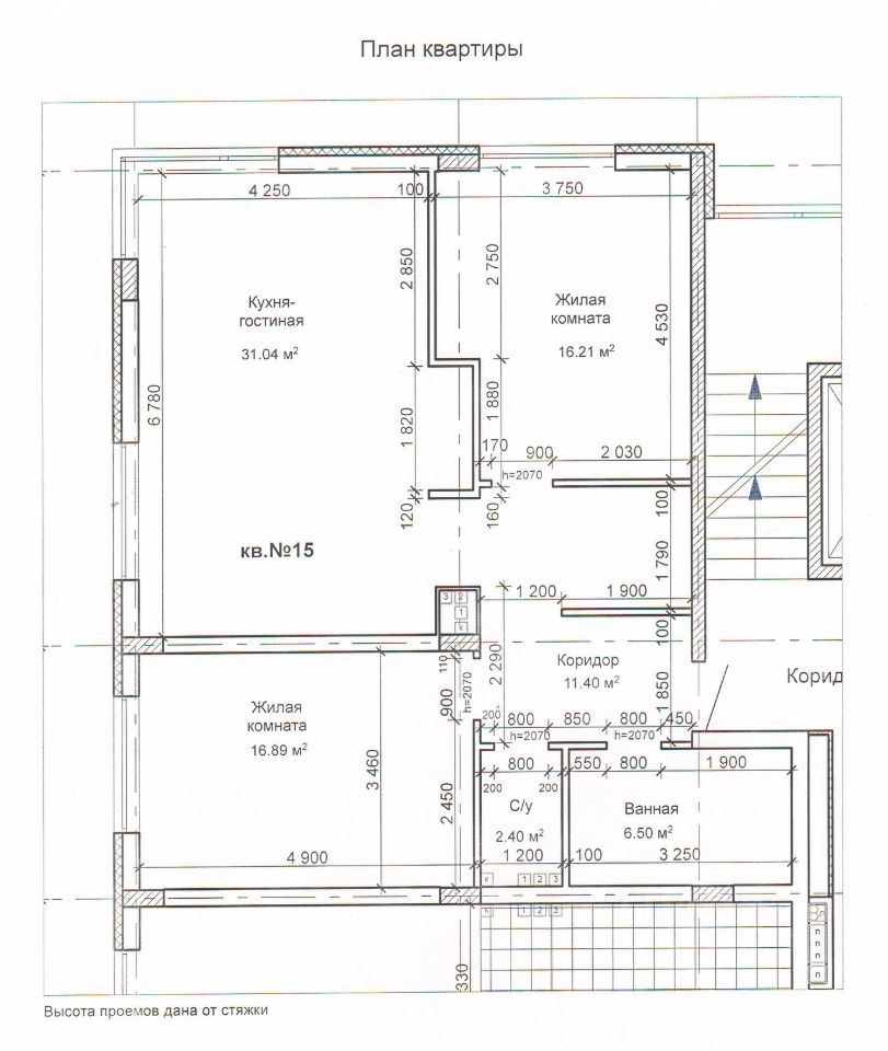
Квартира свободной планировки по адресу пр. Музрукова д. 13 корп. 2:
- общая площадь 88,3 м²,
- этаж 5/5 (в доме есть лифт),
- стороны света: север, восток,
- витражные окна.
Свободная планировка позволяет разместить, как две, так и три комнаты и большую кухню-гостиную. Дом в современном стиле (большой лифт, высота потолков 3 м). Отличное местоположение (магазины, остановки, школа, детск. площадки, парк и т.д.).
Район ''Саровская Ривьера'' состоит из 11 многоэтажных домов, построенных на современной комфортной набережной реки Сатис.
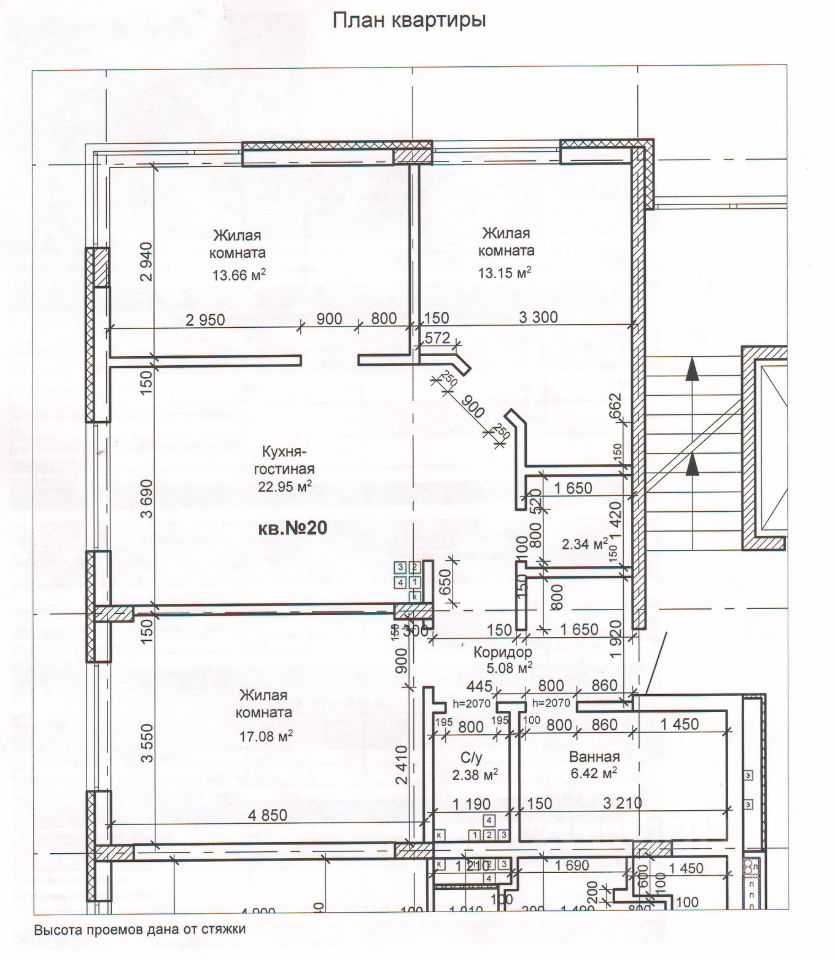
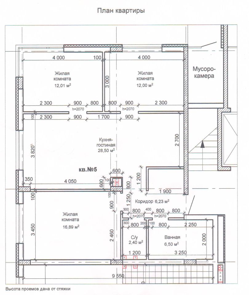
Данная квартира подходит под условия семейной ипотеки, со ставкой 6%.
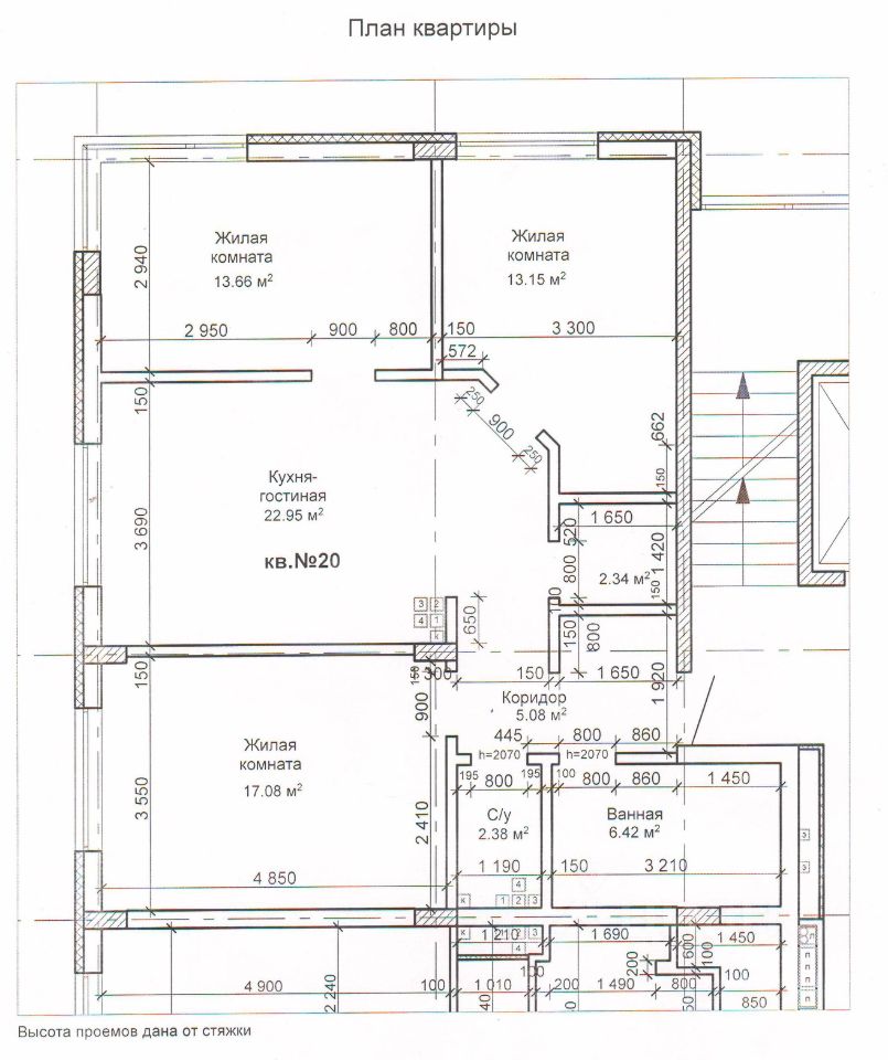
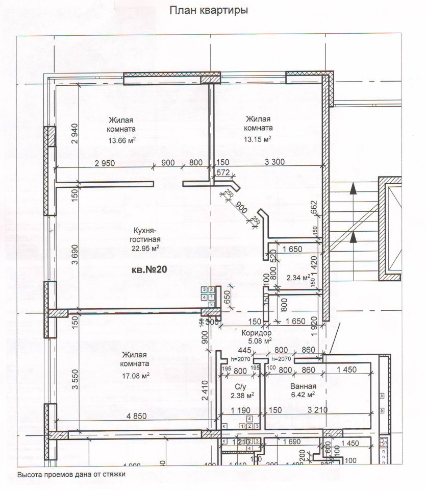
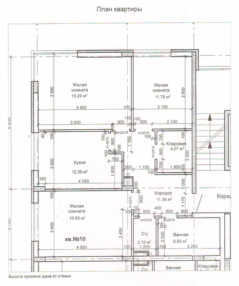
Квартира свободной планировки по адресу пр. Музрукова д. 13 корп. 2:
- общая площадь 88,3 м²,
- этаж 5/5 (в доме есть лифт),
- стороны света: север, восток,
- витражные окна.
Свободная планировка позволяет разместить, как две, так и три комнаты и большую кухню-гостиную. Дом в современном стиле (большой лифт, высота потолков 3 м). Отличное местоположение (магазины, остановки, школа, детск. площадки, парк и т.д.).
Район ''Саровская Ривьера'' состоит из 11 многоэтажных домов, построенных на современной комфортной набережной реки Сатис. ''Ривьера'' стала центром притяжения горожан и гостей города, получила признание на региональном и федеральном уровнях, стала финалистом третьего Ежегодного градостроительного конкурса при Минстрое РФ. Эксперты в сфере строительства высоко оценивают проект, называя его ''частью Европы в ядерном сердце России''. Жители города отмечают также уровень благоустройства территории жилищного комплекса и набережной реки Сатис.