Если цена в объявлении изменится, мы сразу сообщим вам об этом на электронную почту.
Нажимая «Подписаться», вы соглашаетесь с правилами.
продам 2-к, Бетанкура, 714 690 000 ₽
16 окт
Дата публикации объявления
Обн. 12 мая
Дата обновления объявления
2
Количество просмотров (+ просмотры за сегодня)
Топ
237 702 ₽/м²
Чистая продажа
Термин "Чистая продажа" означает, что в квартире никто не прописан или
есть куда выписаться и вывезти вещи. Это лучший вариант для покупателя.
Вероятность срыва сделки минимальна.
Квартира
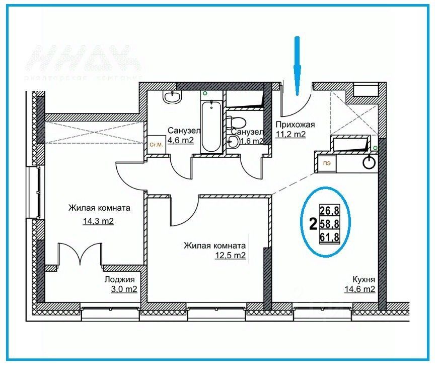
Общая площадь61,8 м2
Жилая площадь26,8 м2
Кухня14,6 м2
Количество лоджий1
Тип собственностисвидетельство о праве собственности
В продаже 2 комнатная квартира в одном из лучших ЖК города ''Бетанкур''. Общая площадь 61.8м , кухня 14.6м, комнаты 14.3 и 12.5 м. Дом бизнес класса строится по современной кирпично-монолитной технологии, отличительные черты- повышенная звукоизоляция, энергосберегающие стеклопакеты, теплые лоджии, станция очистки холодной воды. Предполагается наличие консьержа. Места общего пользования выполнены в единой стилистике по дизайн-проекту. Высота потолка 2,7м, квартиры сдаются под чистовую отделку . Около дома своя закрытая территория с ландшафтным дизайном, безопасными детскими и спортивными площадками, подземный и наземный паркинги.
В продаже 2 комнатная квартира в одном из лучших ЖК города ''Бетанкур''. Общая площадь 61.8м , кухня 14.6м, комнаты 14.3 и 12.5 м. Дом бизнес класса строится по современной кирпично-монолитной технологии, отличительные черты- повышенная звукоизоляция, энергосберегающие стеклопакеты, теплые лоджии, станция очистки холодной воды. Предполагается наличие консьержа. Места общего пользования выполнены в единой стилистике по дизайн-проекту. Высота потолка 2,7м, квартиры сдаются под чистовую отделку . Около дома своя закрытая территория с ландшафтным дизайном, безопасными детскими и спортивными площадками, подземный и наземный паркинги. Местоположение ЖК уникально: здесь не только отличная инфраструктура и транспортная развязка , в том числе станция метро, но и в пешей доступности исторические достопримечательности- Набережная р. Волга, прогулочная зона на Стрелке, Собор Александра Невского, Спасский Староярмарочный Собор, Нижегородская Ярмарка, Футбольный Стадион международного класса и Ледовая Арена Торпедо. Продажи от застройщика, действуют все виды льготных ипотек, актуально предложение ТРЕЙД-ИН. ННДК входит в ТОП-5 региона по объемам текущего строительства, ЖК компании неоднократно завоевывали награды в престижных конкурсах. Звоните, все вопросы и консультации возможны по телефону и в офисе продаж.Номер объекта: #5/539910/17397