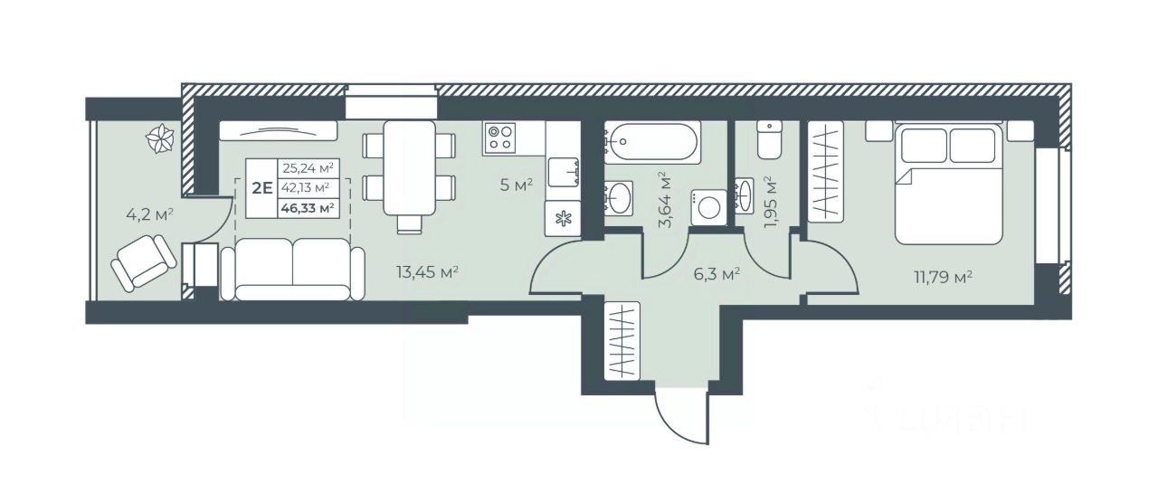
Продаётся 2-комнатная квартира в строящемся доме (Дом 1), срок сдачи: III-кв. 2027, общей площадью 46.33 кв.м., на 2 этаже. Новый жилой комплекс ''Ботаника Парк'' от застройщика ''БМ Групп'' расположен по адресу Россия, Нижегородская область, Выкса, квартал Инженера Шухова.