Если цена в объявлении изменится, мы сразу сообщим вам об этом на электронную почту.
Нажимая «Подписаться», вы соглашаетесь с правилами.
продам 2-к, Октябрьская, 2140 375 000 ₽
29 ноя
Дата публикации объявления
Обн. 16 мая
Дата обновления объявления
Спецпредложение
Турбо x8
409 898 ₽/м²
Чистая продажа
Термин "Чистая продажа" означает, что в квартире никто не прописан или
есть куда выписаться и вывезти вещи. Это лучший вариант для покупателя.
Вероятность срыва сделки минимальна.
Квартира
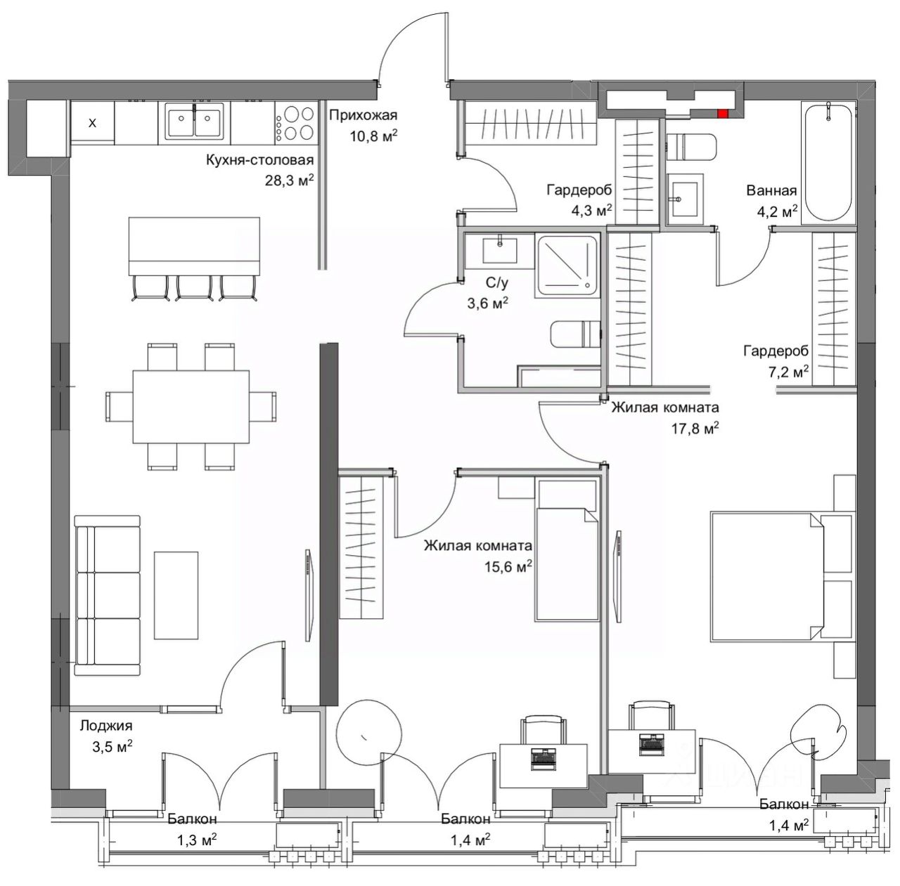
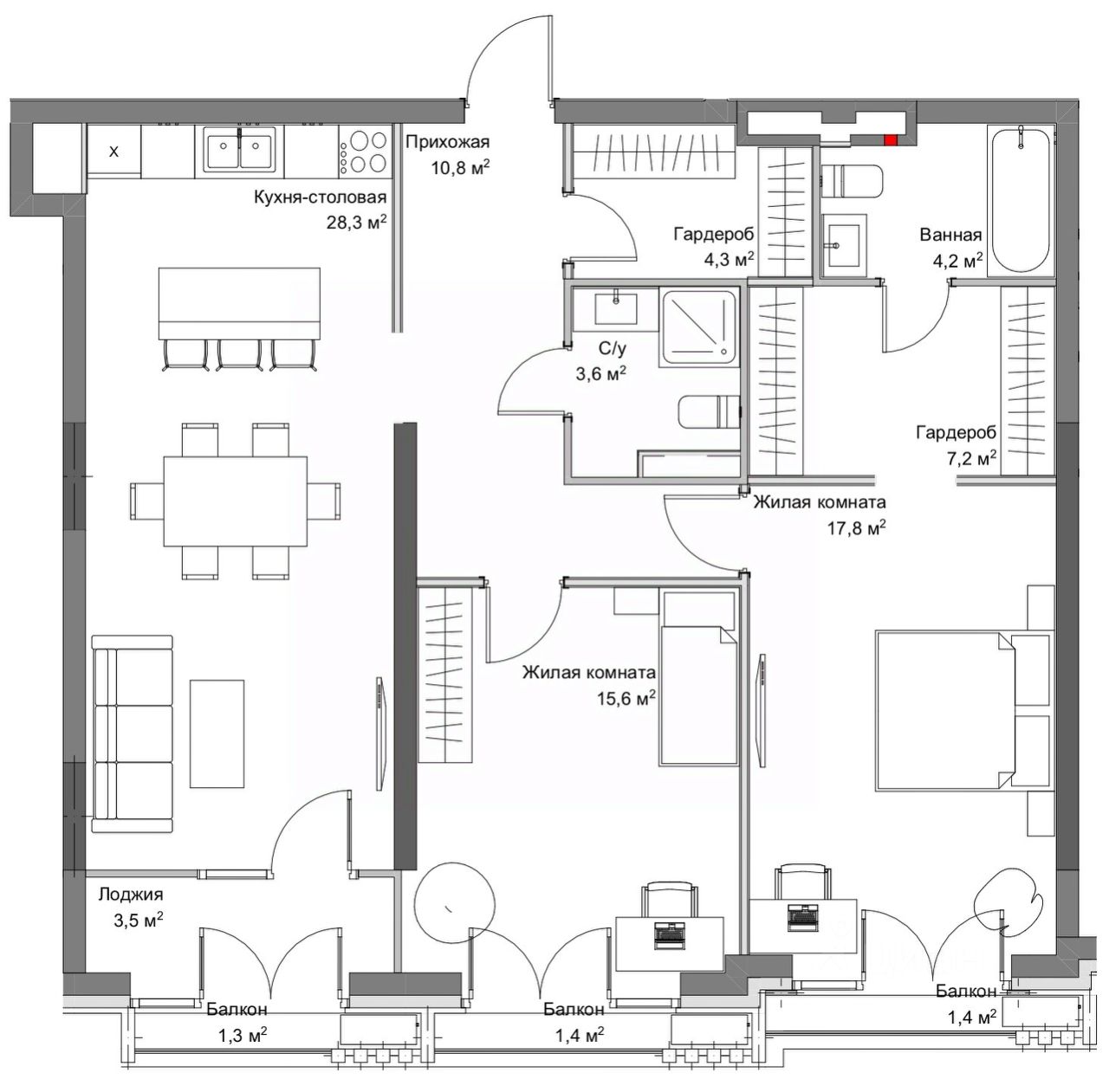
Общая площадь98,5 м2
Тип собственностисвидетельство о праве собственности
Продаётся 2-комнатная квартира в сданном доме (дом 1), срок сдачи: IV-кв. 2025, общей площадью 98.5 кв.м., на 5 этаже. Новый жилой комплекс ''Гермес'' от застройщика ''ГК Разумные инвестиции'' расположен по адресу Нижний Новгород, Октябрьская улица.