Если цена в объявлении изменится, мы сразу сообщим вам об этом на электронную почту.
Нажимая «Подписаться», вы соглашаетесь с правилами.
продам 2-к, Красных Зорь, 23д14 887 423 ₽
9 дек
Дата публикации объявления
Обн. вчера
Дата обновления объявления
1
Количество просмотров (+ просмотры за сегодня)
Спецпредложение
Турбо x8
194 429 ₽/м²
Чистая продажа
Термин "Чистая продажа" означает, что в квартире никто не прописан или
есть куда выписаться и вывезти вещи. Это лучший вариант для покупателя.
Вероятность срыва сделки минимальна.
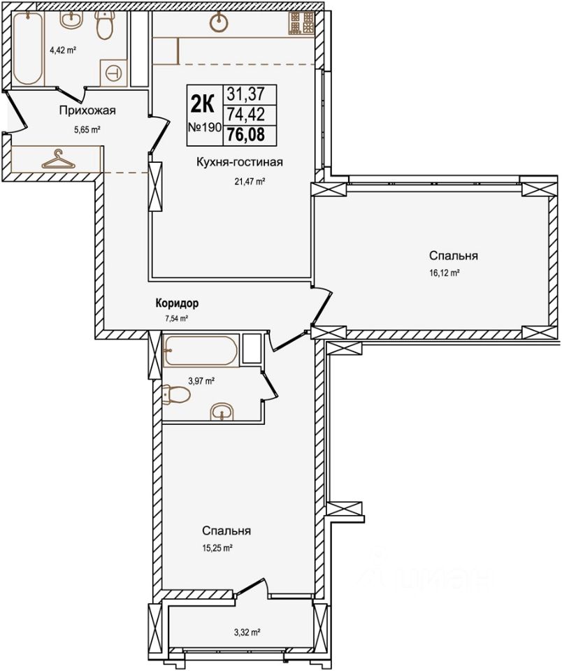
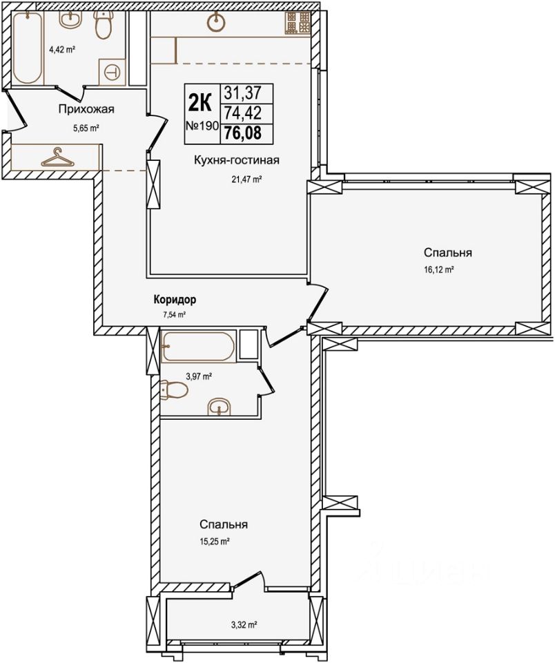
Продаётся 2-комнатная квартира в строящемся доме (дом 23Д), срок сдачи: IV-кв. 2026, общей площадью 76.08 кв.м., на 5 этаже. Новый жилой комплекс ''Авиатор'' от застройщика ''СЗ ЗАРЯ'' расположен по адресу Нижний Новгород, улица Красных Зорь, 23Д.