Если цена в объявлении изменится, мы сразу сообщим вам об этом на электронную почту.
Нажимая «Подписаться», вы соглашаетесь с правилами.
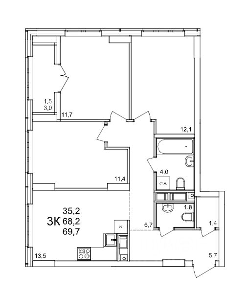
продам 3-к квартира11 028 400 ₽
10 дек
Дата публикации объявления
Обн. вчера
Дата обновления объявления
1
Количество просмотров (+ просмотры за сегодня)
Спецпредложение
Турбо x8
158 000 ₽/м²
Чистая продажа
Термин "Чистая продажа" означает, что в квартире никто не прописан или
есть куда выписаться и вывезти вещи. Это лучший вариант для покупателя.
Вероятность срыва сделки минимальна.
Квартира
Общая площадь69,8 м2
Тип собственностидоговор долевого участия
Дом
Срок сдачи3 кв. 2027 г.
Этаж16 из 25
Материал домапанель
Продаётся 3-комнатная квартира в строящемся доме (54), срок сдачи: III-кв. 2027, общей площадью 69.8 кв.м., на 16 этаже. Расположение, транспортная доступность Жилой комплекс ''КМ Анкудиновский парк'' - это микрорайон, в состав которого входит 27 монолитно-кирпичных домов эконом-класса высотой 19-35 этажей, а также разнообразная инфраструктура. Жилой массив размещается на территории площадью 50 гектаров. Комплекс находится за пределами Нижнего Новгорода, в Кстовском районе, около деревни Анкудиновка. Город рядом - до него всего 6 километров. Без пробок до центральной части Нижнего Новгорода от комплекса можно добраться всего за двадцать минут. Поблизости находится улица Ларина, по которой можно быстро выехать на проспект Гагарина, ведущий в центр города.
Продаётся 3-комнатная квартира в строящемся доме (54), срок сдачи: III-кв. 2027, общей площадью 69.8 кв.м., на 16 этаже. Расположение, транспортная доступность Жилой комплекс ''КМ Анкудиновский парк'' - это микрорайон, в состав которого входит 27 монолитно-кирпичных домов эконом-класса высотой 19-35 этажей, а также разнообразная инфраструктура. Жилой массив размещается на территории площадью 50 гектаров. Комплекс находится за пределами Нижнего Новгорода, в Кстовском районе, около деревни Анкудиновка. Город рядом - до него всего 6 километров. Без пробок до центральной части Нижнего Новгорода от комплекса можно добраться всего за двадцать минут. Поблизости находится улица Ларина, по которой можно быстро выехать на проспект Гагарина, ведущий в центр города. Специально для улучшения транспортной ситуации застройщик организовал рядом с корпусами микрорайона автобусные остановки, поэтому добраться до города можно будет быстро и тем, кто не пользуется личным автотранспортом. В десяти минутах ходьбы от комплекса находится железнодорожная платформа ''Анкудиновка'', от которой можно за час с небольшим доехать до Московского вокзала Нижнего Новгорода. Инфраструктура Собственная инфраструктура микрорайона ''КМ Анкудиновский парк'' включает в себя: несколько детских садов, общеобразовательную школу, бизнес-центр, торговый и физкультурно-оздоровительный комплексы. На первых этажах зданий располагаются офисные и коммерческие помещения. В посёлке Анкудиновка инфраструктуры не очень много, но в деревне Федяково (до которой от новостройки можно доехать за десять минут) работает крупный торговый центр ''Мега'' с гипермаркетами ''Ашан'', IKEA и OBI. По улице Ларина можно быстро доехать до центральной части Нижнего Новгорода, где расположено большое количество магазинов и торговых центров. Одно из главных достоинств ЖК ''КМ Анкудиновский парк'' - это экологичность места, в котором он располагается. По соседству находится огромный Анкудиновский парк (в честь которого назван комплекс) и Ботанический сад, где собрано множество редких растений (с мая по октябрь в саду работает Дендрарий с тропическими и субтропическими растениями). Недалеко располагается несколько лесных озёр и лесопарк ''Щёлковский хутор'', на территории которого есть Музей архитектуры и быта народов нижегородского Поволжья. Все крупные транспортные магистрали находятся на безопасном для качества воздуха расстоянии от микрорайона. У жителей ''Анкудиновского парка'' есть уникальная возможность жить за городом, в хороших экологических условиях, на свежем воздухе, и, в то же время, рядом с городом и всей необходимой инфраструктурой. Надёжность застройщика Жилой комплекс ''КМ Анкудиновский парк'' - это проект группы компаний ''Каркас Монолит'', которая начала свою деятельность на рынке недвижимости в 2000 году. В соответствии с названием, компания специализируется на монолитной строительной технологии, реализуя проекты как в сфере элитной недвижимости, так и в сфере жилья эконом-класса. Во всех своих проектах ГК