В избранном
В избранное
Пожаловаться
Напечатать
Следить за ценой

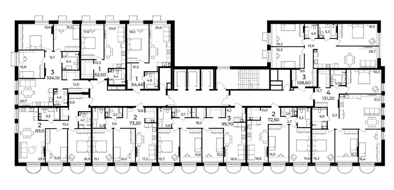
продам 3-к, Воровского, 833 832 500 ₽

10 дек
Обн. 12 мая
2
325 000 ₽/м²
  • Чистая продажа