Если цена в объявлении изменится, мы сразу сообщим вам об этом на электронную почту.
Нажимая «Подписаться», вы соглашаетесь с правилами.
продам 2-к квартира9 463 100 ₽
11 дек
Дата публикации объявления
Обн. 14 мая
Дата обновления объявления
3
Количество просмотров (+ просмотры за сегодня)
Спецпредложение
Турбо x8
173 000 ₽/м²
Чистая продажа
Термин "Чистая продажа" означает, что в квартире никто не прописан или
есть куда выписаться и вывезти вещи. Это лучший вариант для покупателя.
Вероятность срыва сделки минимальна.
Квартира
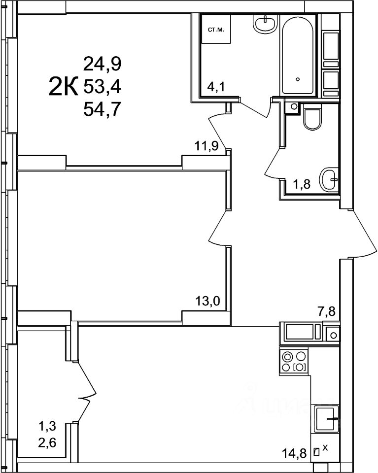
Общая площадь54,7 м2
Жилая площадь24,9 м2
Тип собственностидоговор долевого участия
Дом
Срок сдачи3 кв. 2027 г.
Этаж17 из 25
Материал домапанель
Продается квартира в строящемся доме с новой улучшенной отделкой под ключ.
Ванная комната подвесная раковина с тумбой белоснежная акриловая ванна электрический полотенцесушитель удобный унитаз-компакт стены — бежевая плитка, пол — керамогранит под мрамор споты на потолке Кухня светлый кухонный гарнитур встроенные духовой шкаф и варочная панель раковина и смеситель уже установлены На полу ламинат 32 класса Комнаты белые обои под покраску — легко освежить интерьер в любом стиле надёжный ламинат 32 класса на полу шпонированные межкомнатные двери Прихожая износостойкий керамогранит под мрамор, который всегда выглядит аккуратно и стильно.
Продается квартира в строящемся доме с новой улучшенной отделкой под ключ.
Ванная комната подвесная раковина с тумбой белоснежная акриловая ванна электрический полотенцесушитель удобный унитаз-компакт стены — бежевая плитка, пол — керамогранит под мрамор споты на потолке Кухня светлый кухонный гарнитур встроенные духовой шкаф и варочная панель раковина и смеситель уже установлены На полу ламинат 32 класса Комнаты белые обои под покраску — легко освежить интерьер в любом стиле надёжный ламинат 32 класса на полу шпонированные межкомнатные двери Прихожая износостойкий керамогранит под мрамор, который всегда выглядит аккуратно и стильно.
КМ Анкудиновский Парк — современный жилой комплекс, который уже стал полноценным районом для жизни. Здесь не нужно ждать, пока появится инфраструктура — всё уже есть и работает! Открыты 2 детских сада на 150 и 280 мест, 2 школы на 1350 местСетевые магазины, кафе и различные сервисыИгровые и спортивные площадки для детей и взрослыхПроектом предусмотрено строительство третьего детского сада, а также торгового центра, поликлиники и ФОКаОбщественный транспорт: несколько действующих маршрутов, на которых удобно добираться в разные части города Станьте жителем КМ Анкудиновский Парк и вы! Посетите наш шоурум и узнайте больше о выгодных предложениях и вариантах покупки в офисе продаж группы компаний Каркас Монолит.