сдам универсальное помещение, Белинского, 23304 000 ₽ в месяц
14 дек
Дата публикации объявления
Обн. 13 апр
Дата обновления объявления
3
Количество просмотров (+ просмотры за сегодня)
2000 ₽/м² в месяц
Параметры
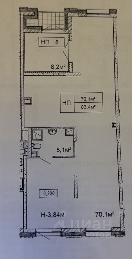
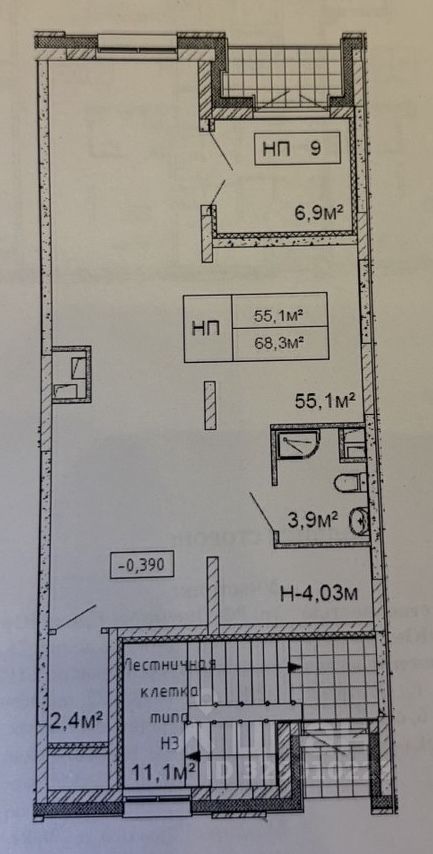
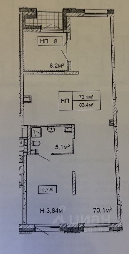
Общая площадь152 м2
Этаж1
Отдельный входесть
Красная линия. Два отдельных входа. Потолки 4 метра. Есть дополнительный выход во двор. Требует ремонт. Каникулы предоставляются.Так же имеется два паркованных места на подземной парковке. Покажу в удобное время