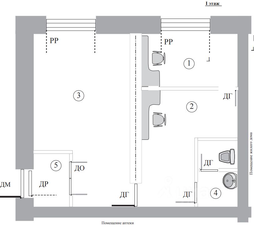
Сбер А предлагает к продаже помещения площадью 41,8 кв.м, расположенного по адресу: Нижегородская область, г. Бор, рп. Большое Пикино, ул. Больничная, д. 24
Реализация посредством проведения торгов на электронной площадке Сбербанк-АСТ.
Номер процедуры: SBR065-2512250005
Собственник: Волго-Вятский банк ПАО Сбербанк
О лоте:
Нежилое помещение общей площадью 41.8 кв. м
Этаж: 1
По всем вопросам, связанным с лотом, обращайтесь в рабочее время по телефону с 09:00 до 18:00 по МСК.


