Если цена в объявлении изменится, мы сразу сообщим вам об этом на электронную почту.
Нажимая «Подписаться», вы соглашаетесь с правилами.
продам 1-к квартира21 700 000 ₽
3 янв
Дата публикации объявления
Обн. сегодня
Дата обновления объявления
3
Количество просмотров (+ просмотры за сегодня)
Спецпредложение
Турбо x8
467 370 ₽/м²
Чистая продажа
Термин "Чистая продажа" означает, что в квартире никто не прописан или
есть куда выписаться и вывезти вещи. Это лучший вариант для покупателя.
Вероятность срыва сделки минимальна.
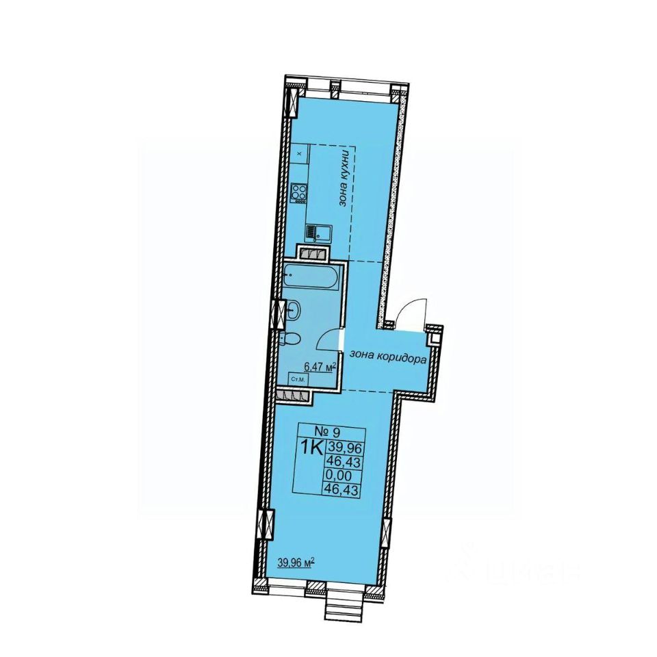
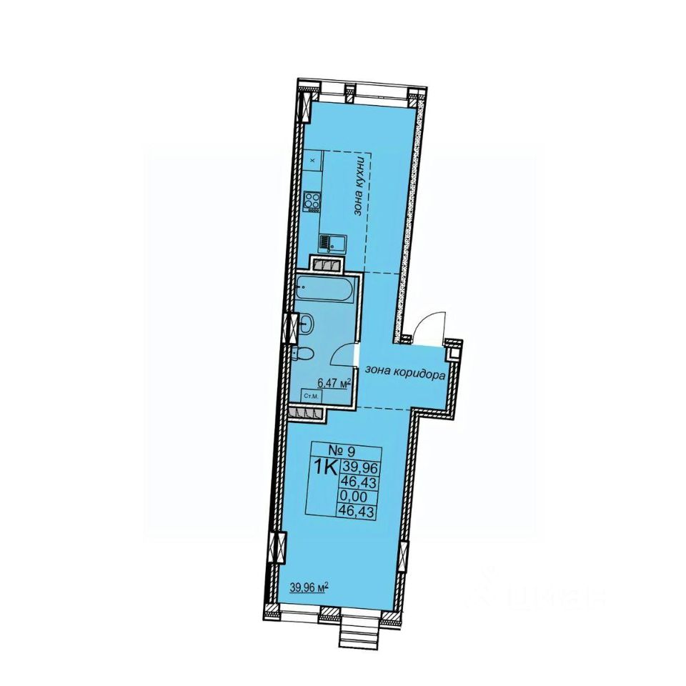
Квартира
Общая площадь46,43 м2
Жилая площадь40 м2
Тип собственностисвидетельство о праве собственности
Дом
Этаж4 из 6
Материал домакирпич - монолит
Продаётся 1-комнатная квартира в строящемся доме (дом 1), срок сдачи: III-кв. 2026, общей площадью 46.43 кв.м., на 4 этаже. Жилой комплекс премиум-класса ''Приоритет'' на улице Грузинская - это исключительная возможность жить в историческом центре Нижнего Новгорода. Фасады здания выходят непосредственно в сквер имени Свердлова и к театру ''Комедiя''. Жилой комплекс расположен в старейшем районе города, насыщенном атмосферой истории, искусства и светской жизни. Соседствуя с ключевыми культурными и бизнес-точками города, ''Приоритет'' дает вам возможность всегда быть в центре событий. Рестораны и театры, парки и скверы, бизнес-центры и офисы - все лучшее уже здесь.
Продаётся 1-комнатная квартира в строящемся доме (дом 1), срок сдачи: III-кв. 2026, общей площадью 46.43 кв.м., на 4 этаже. Жилой комплекс премиум-класса ''Приоритет'' на улице Грузинская - это исключительная возможность жить в историческом центре Нижнего Новгорода. Фасады здания выходят непосредственно в сквер имени Свердлова и к театру ''Комедiя''. Жилой комплекс расположен в старейшем районе города, насыщенном атмосферой истории, искусства и светской жизни. Соседствуя с ключевыми культурными и бизнес-точками города, ''Приоритет'' дает вам возможность всегда быть в центре событий. Рестораны и театры, парки и скверы, бизнес-центры и офисы - все лучшее уже здесь. Особый статус проекта подчёркивают современные архитектурные решения: лаконичные фасады здания, архитектурная подсветка и дизайн мест общего пользования. На первом этаже находится двухсветное лобби, выполненное по дизайнерскому проекту. В отделке интерьеров широко используются натуральные материалы. Сочетание мрамора, дерева и больших зеркал создают невероятно красивый ансамбль. На шести этажах располагаются квартиры свободной планировки с увеличенной высотой потолков и панорамным остеклением. Никаких ограничений в планировании пространства! Закрытый двор, видеонаблюдение на каждом этаже и комната охраны обеспечивают высокий уровень приватности и безопасности жителей и гостей комплекса. На двух подземных этажах располагается большой паркинг со станциями зарядки электромобилей, а также сити-боксы для хранения вещей. Поселиться в историческом центре в нескольких шагах от сквера имени Свердлова - уникальная возможность и привилегия для жителей большого города.