Если цена в объявлении изменится, мы сразу сообщим вам об этом на электронную почту.
Нажимая «Подписаться», вы соглашаетесь с правилами.
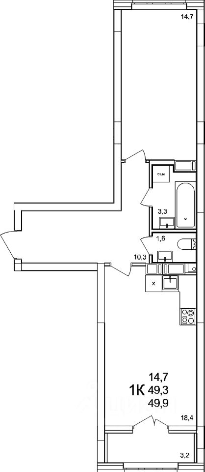
продам 1-к, КМ Анкудиновский Парк ЖК, 478 932 100 ₽
4 фев
Дата публикации объявления
Обн. вчера
Дата обновления объявления
Спецпредложение
Турбо x8
179 000 ₽/м²
Чистая продажа
Термин "Чистая продажа" означает, что в квартире никто не прописан или
есть куда выписаться и вывезти вещи. Это лучший вариант для покупателя.
Вероятность срыва сделки минимальна.
Продаётся квартира с готовой отделкой в строящемся доме жилого комплекса КМ Анкудиновский Парк. Высокая готовность дома. Ключи уже в этом году - заселение до сентября 2026 года!
Продаётся квартира с готовой отделкой в строящемся доме жилого комплекса КМ Анкудиновский Парк. Высокая готовность дома. Ключи уже в этом году - заселение до сентября 2026 года!
Отделка квартиры включает:
Ванная комната подвесная раковина с тумбойбелоснежная акриловая ваннаэлектрический полотенцесушительунитаз-компактстены и пол в керамической плиткеточечные светильники на потолкеКухня светлый кухонный гарнитурвстроенные духовой шкаф и варочная панельраковина и смеситель уже установленыпол — ламинат 32 классаКомнаты белые обои под покраску (легко обновить интерьер в любом стиле)надёжный ламинат 32 классашпонированные межкомнатные двериПрихожая износостойкий керамогранит в цвет дерева О комплексе:
КМ Анкудиновский Парк — современный жилой комплекс, который уже стал полноценным районом для жизни. Здесь не нужно ждать, пока появится инфраструктура — всё уже есть и работает! Открыты 2 детских сада на 150 и 280 мест, 2 школы на 1350 местРаботают сетевые магазины, кафе и различные сервисыМножество игровых и спортивных площадок для детей и взрослыхПроектом предусмотрено строительство третьего детского сада, а также торгового центра, поликлиники и ФОКаНесколько действующих маршрутов общественного транспорта, на которых удобно добираться в разные части города Станьте жителем КМ Анкудиновский Парк и вы! Посетите наш шоурум и узнайте больше о выгодных предложениях и вариантах покупки в офисе продаж группы компаний Каркас Монолит.