Если цена в объявлении изменится, мы сразу сообщим вам об этом на электронную почту.
Нажимая «Подписаться», вы соглашаетесь с правилами.
продам 1-к, Заломова, 911 100 000 ₽
7 фев
Дата публикации объявления
Обн. 8 апр
Дата обновления объявления
2
Количество просмотров (+ просмотры за сегодня)
346 875 ₽/м²
Чистая продажа
Термин "Чистая продажа" означает, что в квартире никто не прописан или
есть куда выписаться и вывезти вещи. Это лучший вариант для покупателя.
Вероятность срыва сделки минимальна.
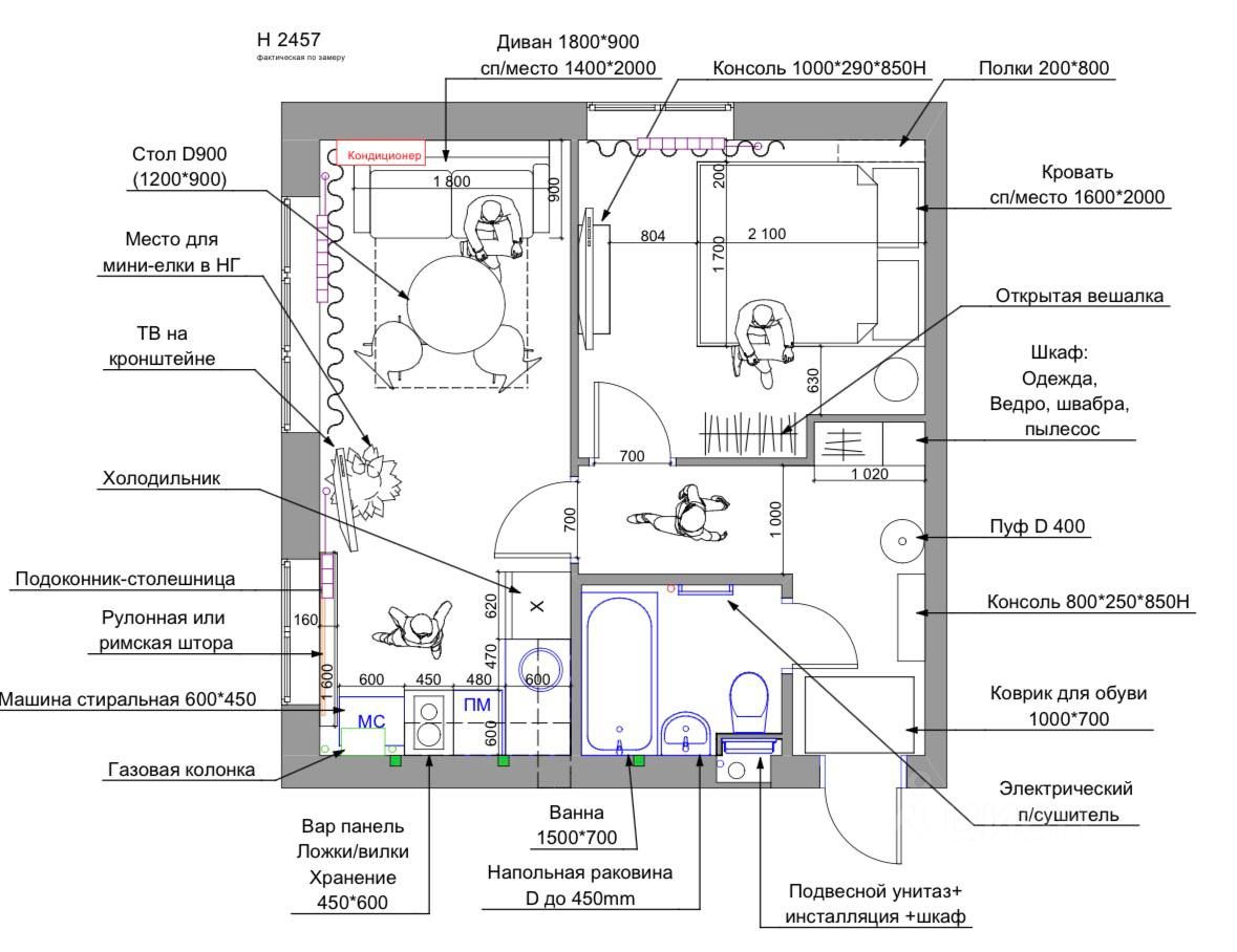
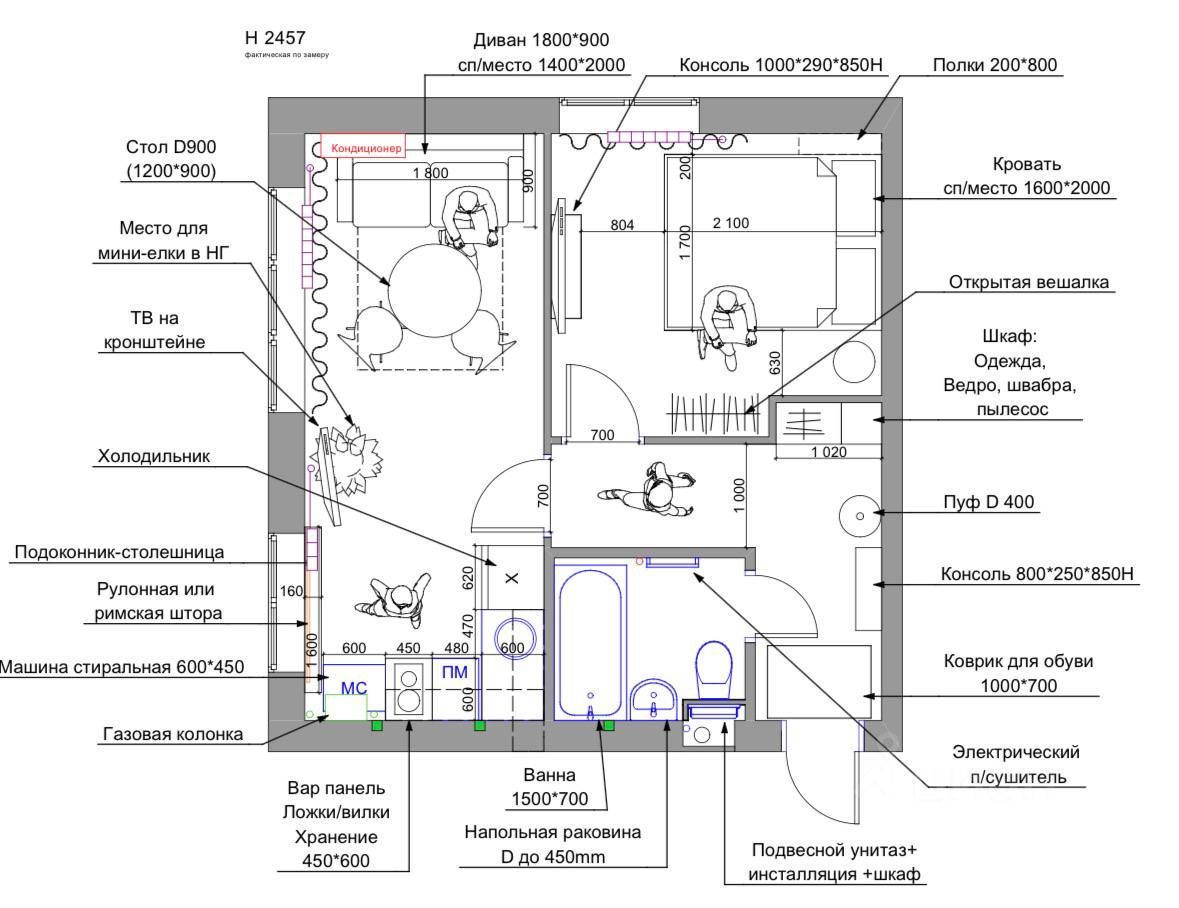
Продам квартиру в центре Нижнего Новгорода! Ул. Заломова, красная линия
Просторная и современная 1+ квартира (отдельная спальня и кухня-гостиная) на 2 этаже 5-этажного кирпичного дома. Полностью готова к проживанию или сдаче — отличный вариант как для жизни, так и для инвестиций!
Продам квартиру в центре Нижнего Новгорода! Ул. Заломова, красная линия
Просторная и современная 1+ квартира (отдельная спальня и кухня-гостиная) на 2 этаже 5-этажного кирпичного дома. Полностью готова к проживанию или сдаче — отличный вариант как для жизни, так и для инвестиций!
В 5 минутах ходьбы: - парк 800 летию города с амфитеатром и видом на стрелку - строится новый парк до кремля с терассами
Один взрослый собственник
Преимущества: • Новый дизайнерский ремонт — всё сделано качественно и со вкусом • Мебель и техника остаются — заезжай и живи • Установлены 2 кондиционера в каждой комнате • Уютная кухня-гостиная и отдельная спальня • Приличные соседи, чистый подъезд • Дом на красной линии, в шаговой доступности остановки, магазины, набережная с шикарными закатами, центр города, до всех основных локаций города (Большая Покровская, пл. Горького, пл. Минина, Чкаловская лестница, Рождественская(центр развлечений)и др. от 3 до 10 минут пешком
Готовый бизнес — квартира уже сдается, приносит стабильный доход.
Звоните прямо сейчас! Покажу в удобное время, помогу с оформлением. Отличное предложение в центре города!