Если цена в объявлении изменится, мы сразу сообщим вам об этом на электронную почту.
Нажимая «Подписаться», вы соглашаетесь с правилами.
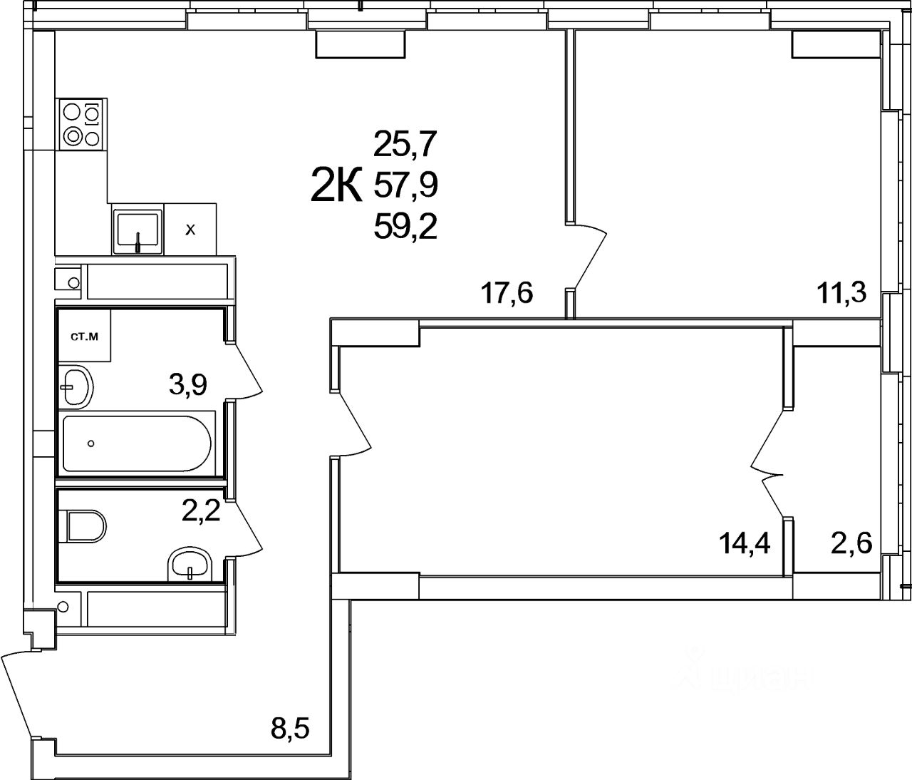
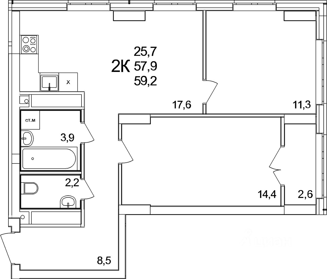
продам 2-к, КМ Анкудиновский Парк ЖК, 509 235 200 ₽
22 фев
Дата публикации объявления
Обн. 28 апр
Дата обновления объявления
Спецпредложение
Турбо x8
156 000 ₽/м²
Чистая продажа
Термин "Чистая продажа" означает, что в квартире никто не прописан или
есть куда выписаться и вывезти вещи. Это лучший вариант для покупателя.
Вероятность срыва сделки минимальна.
Продаётся квартира без отделки в КМ Анкудиновский Парк. Высокая готовность дома. Ключи уже в этом году - заселение до сентября 2026 года! Квартира без отделки — это отличный шанс создать интерьер под себя. Вы сами выбираете стиль, материалы и детали, чтобы сделать жильё именно таким, о котором мечтали.
КМ Анкудиновский Парк — современный жилой комплекс, который уже стал полноценным районом для жизни. Здесь не нужно ждать, пока появится инфраструктура — всё уже есть и работает!
Продаётся квартира без отделки в КМ Анкудиновский Парк. Высокая готовность дома. Ключи уже в этом году - заселение до сентября 2026 года! Квартира без отделки — это отличный шанс создать интерьер под себя. Вы сами выбираете стиль, материалы и детали, чтобы сделать жильё именно таким, о котором мечтали.
КМ Анкудиновский Парк — современный жилой комплекс, который уже стал полноценным районом для жизни. Здесь не нужно ждать, пока появится инфраструктура — всё уже есть и работает! Открыты 2 детских сада на 150 и 280 мест, 2 школы на 1350 местРаботают сетевые магазины, кафе и различные сервисыМножество игровых и спортивных площадок для детей и взрослыхПроектом предусмотрено строительство третьего детского сада, а также торгового центра, поликлиники и ФОКаНесколько действующих маршрутов общественного транспорта, на которых удобно добираться в разные части города Станьте жителем КМ Анкудиновский Парк и вы! Посетите наш шоурум и узнайте больше о выгодных предложениях и вариантах покупки в офисе продаж группы компаний Каркас Монолит.