Дом, Ближне-Песочное рп, 51 Показать на карте
Ближне-Песочное рп
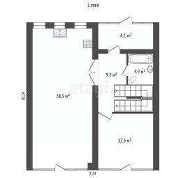
В продаже новый дом 2024 года постройки общей площадью 99,9 м², расположенный на ровном сухом участке в 8,5 соток. Объект полностью готов к заселению: проведены все необходимые коммуникации. Планировка включает три изолированные комнаты, просторную прихожую, санузел и большую объединенную кухню-гостиную, что создает современное и функциональное жилое пространство для семьи. Во всех помещениях уложен керамогранит с системой теплого пола, обеспечивающей равномерный обогрев в холодный период, установлены натяжные потолки, стены подготовлены под поклейку обоев согласно вашим предпочтениям. На благоустроенной территории возведены баня и погреб. В поселке есть магазины, школа. Код пользователя: 147653Номер в базе: 10675315
99 м2
1 этаж
- Показать контакты
- Добавить в избранное
99 м2
1 этаж
8 000 000
80 080 /м2
