Дом, 1-й Кемеровский переулок Показать на карте
Нижегородский район
Нижний Новгород
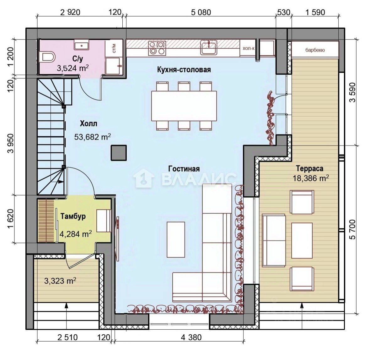
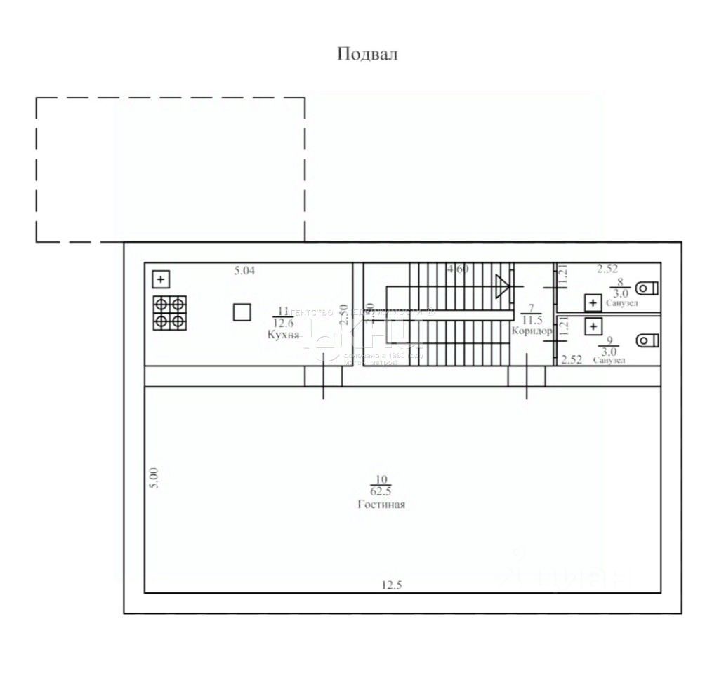
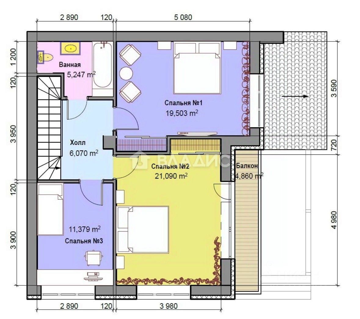
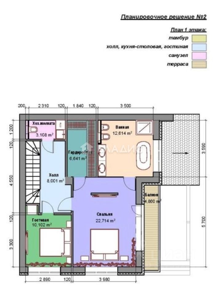
Ключи - сентябрь 2026 г.Стоимость ремонта 14тыс.рубм2Индивидуальные дома бизнес класса и современного дизайна с плоскими кровлями. Продается индивидуальный двухэтажный дом в коттеджном поселке бизнес-класса Баден Village в Верхних Печерах.Участок 500 м в собственностиЛичное + гостевые парковочные местаСовременный и технологичный дом со свободной планировкой, которую можно адаптировать под свой стиль.Просторные, светлые комнаты с панорамными окнами, два санузла, мастер-спальня с гардеробом, уютная терраса и придомовая территория идеальное пространство для всей семьи.Технологии и материалы: стены из Porotherm толщиной 44 см с облицовкой керамическим кирпичоминдивидуальное газовое отопление (котел, теплый пол)энергосберегающие двухкамерные стеклопакетыЛокация: шаговая доступность до остановок общественного транспортарядом школы, детские сады, фитнес-центры, торговые центры (Индиго, Лагуна, Лента, Мега)до центра города 15 минут на машинеФинансовые условия: ипотека от 3,9% (семейная, IT-ипотека, комбо)рассрочка от застройщикаtrade-in вашей недвижимости по рыночной ценеМы продаем не квадратные метры мы продаем образ жизни!Запишитесь на просмотр ежедневно с 10: 00 до 19: 00.Цена указана за уменьшенную комплектацию
162 м2
2 этажа
Кирпич
- Показать контакты
- Добавить в избранное
162 м2
2 этажа
Кирпич
20 735 000
127 994 /м2
