Коттедж, 1 Мая, 115/40 Показать на карте
Кстово
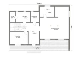
Продаётся уютный двухэтажный коттедж из кирпича 145.6м2 на закрытой территории, построенный в 2021 году. Дом расположен на участке ИЖС, что позволяет использовать его для постоянного проживания. На первом этаже расположены просторная гостиная и кухня-столовая, а также санузел. Второй этаж включает в себя несколько спален и дополнительный санузел. Дом подключен к центральному водоснабжению и газовому отоплению, что обеспечивает комфортное проживание круглый год. Также имеется септик. В доме на 1м этаже и в тамбуре сделан теплый пол от газового котла. К дому пристроена терраса ~36м2, где можно наслаждаться свежим воздухом. Также пристроен гараж ~60м2 и тамбур ~24м2. Рядом с домом находится остановка общественного транспорта, что делает транспортную доступность удобной. В шаговой доступности школа, что особенно удобно для семей с детьми. 400 метров до р. Волга.
145 м2
2 этажа
Кирпич
- Показать контакты
- Добавить в избранное
145 м2
2 этажа
Кирпич
20 500 000
140 797 /м2
