Коттедж, Садовая Показать на карте
Нижний Новгород
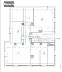
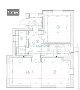
Номер объекта: 1629903. Предлагаю Вашему вниманию продажу дома и земельного участка по адресу: Нижегородская область, Кстовский район, с. Большая Ельня, ул. Садовая. Площадь дома 318.6 кв м, 3 уровня, цоколь, 1 этаж, 2 этаж. СМ фото ПланировкаПлощадь земельного участка составляет 10,56 сот. Участок ровный, широкий. Забор со всех сторон. Удачное расположение в центре села, вдали от центральной дороги.На земельном участке расположен отдельно стоящий гараж. Так же есть свободное место расположить баню, бассейн, детскую площадку, зону барбекю, и много места для ландшафтного дизайна. Некоммерческий проект, дом собственник строил для себя, без планов на переезд. Качественно и без экономии на материалах.Коммуникации: * Газ заведен в дом и подключен к котлу, разводка по дому система отопления настроена по всему дому. Газовой котел BAXY.* Вода: центральное водоснабжение и индивидуальная скважина, вода заведена в дом и сделана разводка по дому. В доме установлен бойлер. * Канализация: септик переливной, 3 кольца.* Электричество: 15 квт .Дом: фундамент плита, стены газосиликатный блок и облицовочный кирпич. Предчистовая отделка в доме, стяжка, штукатурка, разводка электрики, сантехники, воды, отопления.Дом имеет грамотную планировку для большой семьи, для круглогодичного проживания. Близость к городу преимущественное значение местоположения. Большая Ельня популярное село для проживания в Нижегородской области. 15 мин до микрорайона Верхние Печеры и 30 мин до центра Нижнего Новгорода. Это идеальная альтернатива квартиры для большой семьи, которая мечтает проживать вблизи Нижнего Новгорода в своем собственном доме. Буда рада ответить на Ваши вопросы и организую просмотр в удобное для Вас время! Обеспечение комфортной и безопасной сделки, юридическое сопровождение.Деятельность агентства застрахована.
318 м2
3 этажа
- Показать контакты
- Добавить в избранное
318 м2
3 этажа
24 100 000
75 643 /м2
