1-к, Ильича проспект, 2 Показать на карте
Кировская, 10 мин
Нижний Новгород
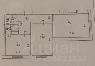
Номер объекта: 1842873. Продаётся просторная однокомнатная квартира на 3 этаже 4-этажного дома общей площадью 33.90 кв.м. Кухня площадью 6 кв.м. Жилая комната площадью 20 кв.м. В прихожей сделана гардеробная. Расположение в 5 минутах ходьбы до станции метро Парк культуры и центра автозаводского района. Этот вариант отличается своей экономичностью, что делает его очень привлекательным для покупателей.Квартира сейчас имеет косметический ремонт. Вся мебель, которая находится в квартире, остается новым владельцам. Проведён интернет, домофон. Удобная парковка прямо у подъезда. Все соседи адекватные, не конфликтные.Этот вариант будет отличным выбором для молодых людей, которые только начинают свой путь к независимости. Также это оптимальный вариант для инвестиций в недвижимость квартира легко может быть сдана в аренду, что принесет постоянный доход.Квартира идеальна для родителей или пожилых родственников, для кого важно иметь все удобства находясь в непосредственной близости от медицинских учреждений и магазинов.Рядом с домом находятся детский сад 341, школа 127, детский сад 15, парк имени 777-летия Нижнего Новгорода, городская больница 37, детская городская больница 25, а также развлекательный центр Zeta с детской секцией по лазертагу. Рядом 2 больших торговых центра, 2 фитнес клуба Физкульт и Режим так же в шаговой доступности расположены супермаркеты Смарт, Spar, Пятерочка, Магнит, Чижик, что делает жизнь новых жильцов очень комфортной и удобной.Реальному покупателю - хороший торг!Документы все в порядке, 1 взрослый собственник, быстрый выход на сделку!Не упустите уникальную возможность стать обладателем этой прекрасной квартиры! Сделайте правильный выбор контактируйте с нами прямо сейчас и мы ответим на все ваши вопросы.Обеспечение комфортной и безопасной сделки, юридическое сопровождение. Деятельность агентства застрахована.
33 м2
3 / 4 этаж
Кирпич
- Показать контакты
- Добавить в избранное
33 м2
3 / 4 этаж
Кирпич
4 500 000
132 743 /м2
