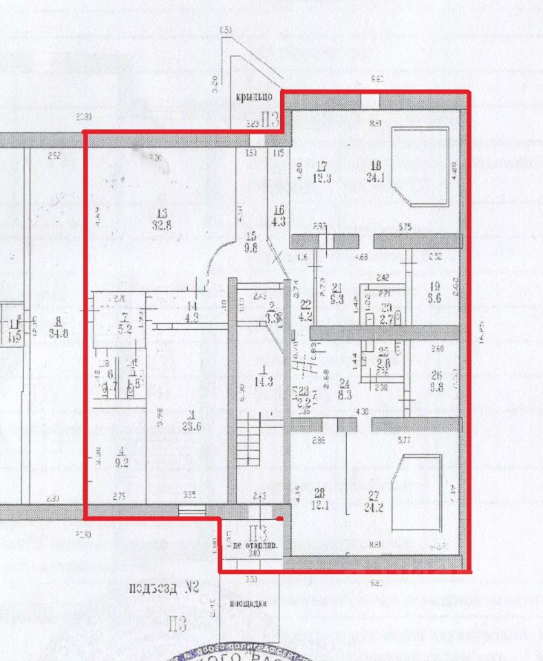
Продаю нежилое помещение 328 кв.м. на первом этаже 2х эт. здания. На данный момент помещение используется под офис и сауна (арендатор). Два входа, с противоположных сторон здания, можно перепланировать под себя, а так же восстановить окна в торце. Возможен выкуп второго этажа (офис). Локация позволяет обеспечить персоналу шаговую доступность от метро, автобуса, трамвая и т.д., напротив есть парковка., рядом дет.сад.