2-к, Бетанкура, 7 Показать на карте
Московская, 14 мин
Нижний Новгород
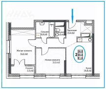
В продаже 2 комнатная квартира в одном из лучших ЖК города ''Бетанкур''. Общая площадь 61.8м , кухня 14.6м, комнаты 14.3 и 12.5 м. Дом бизнес класса строится по современной кирпично-монолитной технологии, отличительные черты- повышенная звукоизоляция, энергосберегающие стеклопакеты, теплые лоджии, станция очистки холодной воды. Предполагается наличие консьержа. Места общего пользования выполнены в единой стилистике по дизайн-проекту. Высота потолка 2,7м, квартиры сдаются под чистовую отделку . Около дома своя закрытая территория с ландшафтным дизайном, безопасными детскими и спортивными площадками, подземный и наземный паркинги. Местоположение ЖК уникально: здесь не только отличная инфраструктура и транспортная развязка , в том числе станция метро, но и в пешей доступности исторические достопримечательности- Набережная р. Волга, прогулочная зона на Стрелке, Собор Александра Невского, Спасский Староярмарочный Собор, Нижегородская Ярмарка, Футбольный Стадион международного класса и Ледовая Арена Торпедо. Продажи от застройщика, действуют все виды льготных ипотек, актуально предложение ТРЕЙД-ИН. ННДК входит в ТОП-5 региона по объемам текущего строительства, ЖК компании неоднократно завоевывали награды в престижных конкурсах. Звоните, все вопросы и консультации возможны по телефону и в офисе продаж.Номер объекта: #1/539910/17397
61 м2
9 / 24 этаж
Кирпич - монолит
- Показать контакты
- Добавить в избранное
61 м2
9 / 24 этаж
Кирпич - монолит
14 690 000
237 702 /м2
Новостройка,
IV-2026
IV-2026
