Дом, Базарная Показать на карте
Шумилово
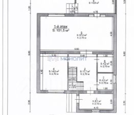
Дом с готовым ремонтом в КП ''Владыкино'' — заезжай и живи! Почему этот дом — лучший выбор для вашей семьи?- Просторная планировка (106 м2):- 3 спальни — личное пространство для всех- Кухня-гостиная 25 м2 — сердце дома- Отдельная котельная- Терраса с панорамным видомРемонт под ключ всё уже сделано: Газовый и электрический котлы, бойлер, тёплый пол, приточная вентиляция в каждой комнате, натяжные потолки, ламинат, обои, межкомнатные двери, полная разводка электрики и сантехники. Качественные материалы и технологии:- Стены из керамического кирпича — надёжность- Утепление 100 мм — тепло зимой, прохладно летом- Мягкая кровля (гибкая черепица)- Современная система вентиляцииГибкие способы оплаты:- Семейная ипотека — 6%- Ипотека для IT-специалистов- Рассрочка от застройщика- Скидки при наличном расчётеПочему — это лучшее место для жизни?- Экологически чистый район, лес и река в 3 км- Тишина загородной жизни + быстрый доступ к городу- Перспективный коттеджный поселок с растущей инфраструктуройСК ''Метротека'' — создаем дома, где рождается счастье!10 лет на рынке — строим с 2014 года250+ домов сдано точно в срокГарантия 5 лет на конструктивВсе объекты на кадастровом учетеУчастки в генеральном плане территории---Не упустите свой дом мечты!Звоните прямо сейчас — количество готовых домов ограничено!Звоните — покажем дом и рассчитаем ипотеку!
105 м2
1 этаж
Кирпич
- Показать контакты
- Добавить в избранное
105 м2
1 этаж
Кирпич
10 335 000
98 429 /м2
