1-к квартира Показать на карте
Советский район
Нижний Новгород
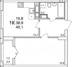
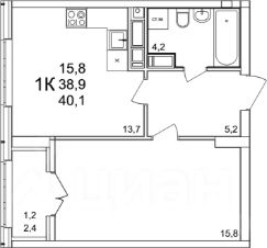
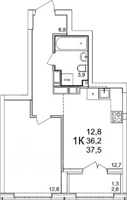
Продается квартира в КМ Анкудиновский Парк с новой улучшенной отделкой. Ванная комната подвесная раковина с тумбой белоснежная акриловая ванна электрический полотенцесушитель удобный унитаз-компакт стены — бежевая плитка, пол — керамогранит под мрамор споты на потолке Кухня светлый кухонный гарнитур встроенные духовой шкаф и варочная панель раковина и смеситель уже установлены На полу ламинат 32 класса Комнаты белые обои под покраску — легко освежить интерьер в любом стиле надёжный ламинат 32 класса на полу шпонированные межкомнатные двери Прихожая износостойкий керамогранит под мрамор, который всегда выглядит аккуратно и стильно. КМ Анкудиновский Парк — современный жилой комплекс, который уже стал полноценным районом для жизни. Здесь не нужно ждать, пока появится инфраструктура — всё уже есть и работает! Открыты 2 детских сада на 150 и 280 мест, 2 школы на 1350 местСетевые магазины, кафе и различные сервисыИгровые и спортивные площадки для детей и взрослыхПроектом предусмотрено строительство третьего детского сада, а также торгового центра, поликлиники и ФОКаОбщественный транспорт: несколько действующих маршрутов, на которых удобно добираться в разные части города Станьте жителем КМ Анкудиновский Парк и вы! Посетите наш шоурум и узнайте больше о выгодных предложениях и вариантах покупки в офисе продаж группы компаний Каркас Монолит.
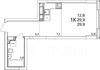
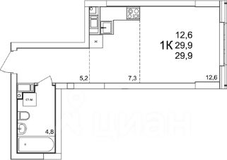
29 м2
23 / 25 этаж
Панель
- Показать контакты
- Добавить в избранное
29 м2
23 / 25 этаж
Панель
5 974 000
206 000 /м2
Новостройка,
III-2027
III-2027
