19 авг
Обн. сегодня
1
Новостройка, 3 кв. 2027
Продам 1-к, КМ Анкудиновский Парк ЖК, 53
Советский район
Нижний Новгород
7 543 800 ₽198 000 ₽ за м²
Чистая продажа
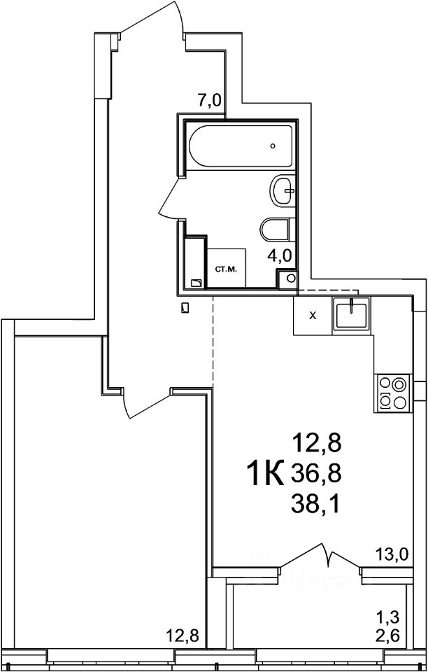
Квартира
- Общая площадь38 м²
- Жилая площадь12 м²
- Тип собственностидоговор долевого участия
Дом
- Срок сдачи3 кв. 2027
- Этаж2 из 25
- Материал домапанель
Описание
Продается квартира в КМ Анкудиновский Парк с новой улучшенной отделкой.
Контакты
Застройщик
Каркас Монолит
Внешний пользователь
№114982430
Ипотечный калькулятор
Стоимость
₽
Первый взнос
₽
Срок кредита
лет
Процентная ставка
Проц. ставка
%
Ежемесячный платеж
56 666 ₽
Мин. доход
103 029 ₽
Сумма кредита
6 412 230 ₽
Один запрос в 8 банков
+2
Узнайте за 10 минут, какую сумму кредита вам одобрят банки




