Расположено в густонаселенном жилом районе на пересечении Московского и Сормовского шоссе, рядом Московский вокзал, автовокзал, гостиница, магазины, торговые центры.
Отличная транспортная доступность, в шаговой доступности остановки общественного транспорта и станция метро Канавинская. Есть парковка.
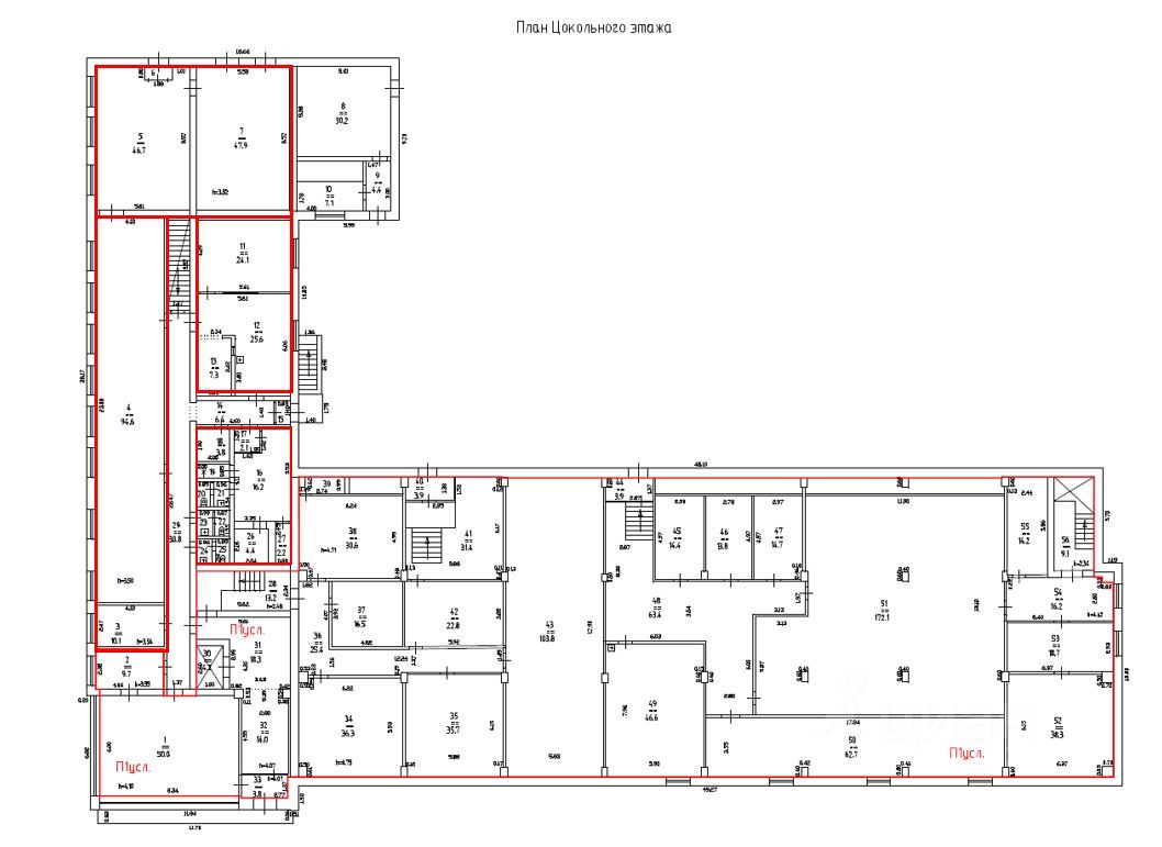
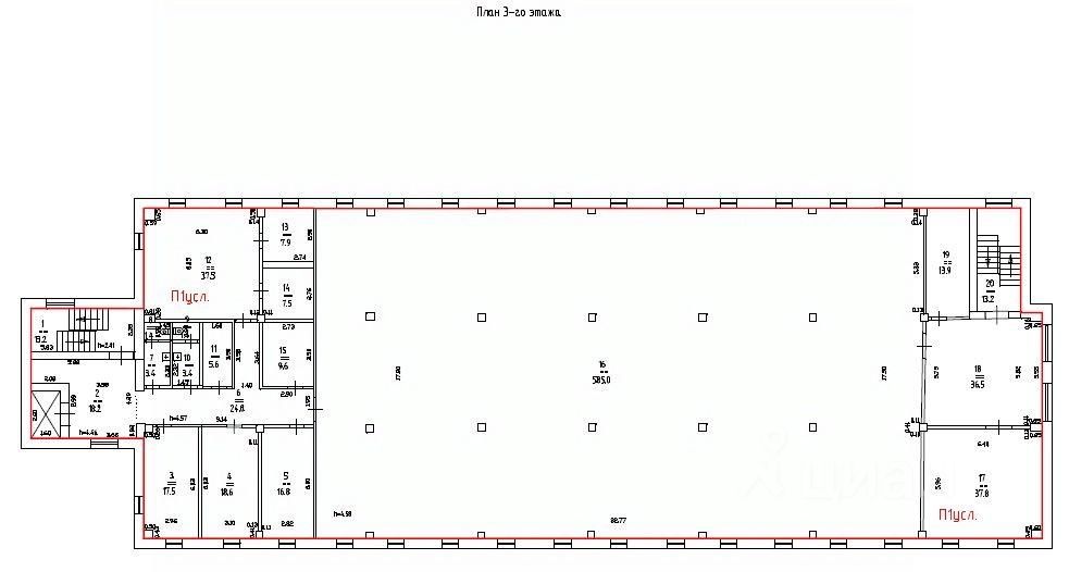
Продается здание площадью 4 668,2 кв. м по адресу: г. Нижний Новгород, ул. Маршала Казакова, д. 4.
5 этажей. Год постройки 1981. Высота потолков 3,5 4,75 м.
В здании современный качественный ремонт, большие залы в формате open-space, оборудованные комнаты приема пищи, кондиционирование.
Расположено в густонаселенном жилом районе на пересечении Московского и Сормовского шоссе, рядом Московский вокзал, автовокзал, гостиница, магазины, торговые центры.
Отличная транспортная доступность, в шаговой доступности остановки общественного транспорта и станция метро Канавинская. Есть парковка.
Земельный участок 3070,74/3200 кв. м, долгосрочная аренда со множественностью лиц со стороны арендатора.
Совместно со зданием передаётся нежилое 1этажное здание площадью 199 кв. м по адресу: Нижегородская область, Ардатовский муниципальный округ, д. Высоково, ул. Центральная , стр. 6/02.
Продажа от собственника — юридического лица ПАО ''Ростелеком''. Цена указана с учетом НДС. Не является офертой.