Если цена в объявлении изменится, мы сразу сообщим вам об этом на электронную почту.
Нажимая «Подписаться», вы соглашаетесь с правилами.
продам дом, Летняя, 14516 000 000 ₽
14 фев
Дата публикации объявления
Обн. 14 фев
Дата обновления объявления
3
Количество просмотров (+ просмотры за сегодня)
125 000 ₽/м²
Чистая продажа
Термин "Чистая продажа" означает, что в квартире никто не прописан или
есть куда выписаться и вывезти вещи. Это лучший вариант для покупателя.
Вероятность срыва сделки минимальна.
Этажей2
Площадь участка5 соток
Общая площадь128 м2
ЭлектричествоЕсть
Газоснабжениецентральное
Использован мат капитал (доли нотариально выделены, требуется только согласование органами опеки сделки купли-продажи), есть ипотека (1 млн), полная стоимость в договоре!
Возможен торг до 15 000 000 (условия обсуждаются индивидуально).
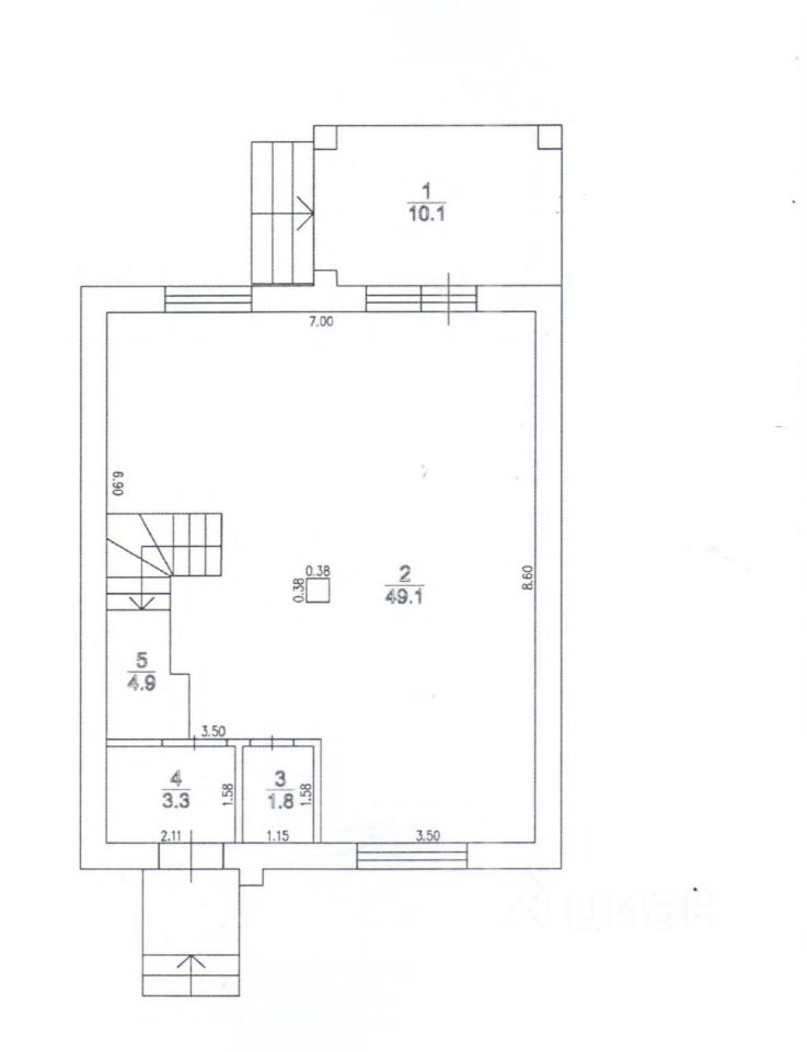
Дом 122,4м2 по тех плану в закрытом коттеджном поселке Новая Опалиха.
Есть пристрой без отопления 27м2 (из дерева, на плане отсутствует), входная группа (8м2 - на плане отсутствует), увеличенная терасса 20м2 (на плане 10м2), чердачное помещение.
Коммуникации центральные (вода, канализация), газ, электричество 6квт. Въезд в посёлок с 3 ворот (Казанское шоссе - Опалиха, М7).
Участок огражден забором 1,8м штакетник, перед - двойной штакетник, откатные ворота Herman 6 метров.
Использован мат капитал (доли нотариально выделены, требуется только согласование органами опеки сделки купли-продажи), есть ипотека (1 млн), полная стоимость в договоре!
Возможен торг до 15 000 000 (условия обсуждаются индивидуально).
Дом 122,4м2 по тех плану в закрытом коттеджном поселке Новая Опалиха.
Есть пристрой без отопления 27м2 (из дерева, на плане отсутствует), входная группа (8м2 - на плане отсутствует), увеличенная терасса 20м2 (на плане 10м2), чердачное помещение.
Коммуникации центральные (вода, канализация), газ, электричество 6квт. Въезд в посёлок с 3 ворот (Казанское шоссе - Опалиха, М7).
Участок огражден забором 1,8м штакетник, перед - двойной штакетник, откатные ворота Herman 6 метров.
На участок завезено 40см плодородной почвы, внизу песчаная подушка 15см, посажен низкорослый газон, теплица 4м, плодовые деревья (яблони, груша, вишня, слива), плодовые кусты (4 малины, 2 крыжовника, 2 смородины, жимолость), 3 грядки, неплодовые деревья (туи, елки, 2 грядки оформленные). Все плодовые деревья и кусты 6 летние, плодоносят второй сезон.
По отмостке и вся въездная группа выложена брусчаткой с водоотведением (лотки).
Детские качели и батут - для развлечения детей от 2 лет.
1 этаж - пол в плитке с водяным тёплым полом, стены - покрашены, с/у - в плитке, инсталляция. 2 этаж - пол ламинат, стены - частично обои, частично покрашены, с/у в плитке с тёплым электрическим полом, инсталляция.
Останется: вся мебель (кухонный гарнитур, диван, подставка под ТВ, шкаф в с/у, шкаф в прихожей, шкаф под лестницей, шкаф 2 этаж коридор, шкаф ванная, кровать и тумбочки в малой комнате, шкафы, стеллажи, кровати в детских комнатах). встроенная техника (духовой шкаф, СВЧ, ПММ, вытяжка, варочная поверхность). Холодильник, морозильная камера, стиральная машина - по согласованию.
смена собственников 30.10.2024 - это выделение долей детям.